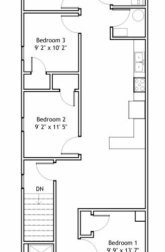
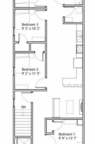
Balcony on Court Street overlooking the North End Restaurant and Courtside Pizza! This 4 bedroom 2 full bath unit rents out quickly because of its excellent location. The vibrant Court Street nightlife is your front yard!
The entrance to the unit is right on Court St (next to Fern Alley). The front bedroom overlooks Court St and leads to the balcony. Heck, even one of the bathrooms overlooks Court St! Three additional bedrooms, laundry room, utility room, bathroom and 2nd full bathroom are off of the common hallway and around the open kitchen and living room floor plan. This unit has a dedicated laundry room with washer/dryer provided. Central AC in this unit as well!
Live in the heart of Ohio University and Uptown Athens Ohio culture…The true college experience!



















