The “Hoover House”
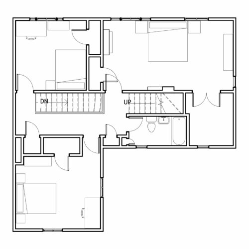
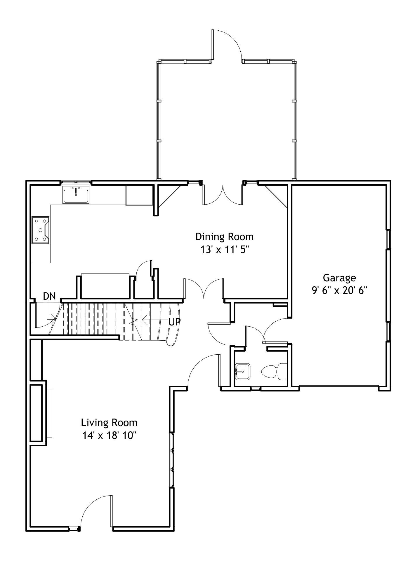
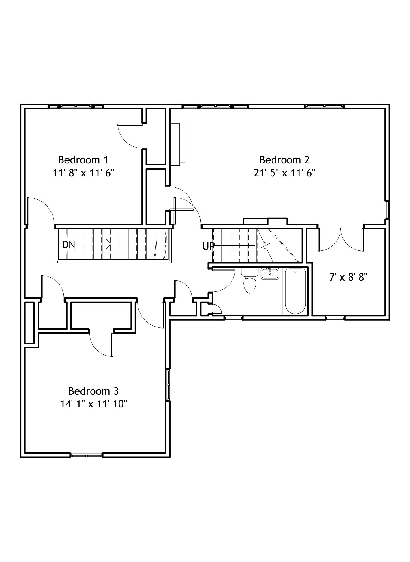
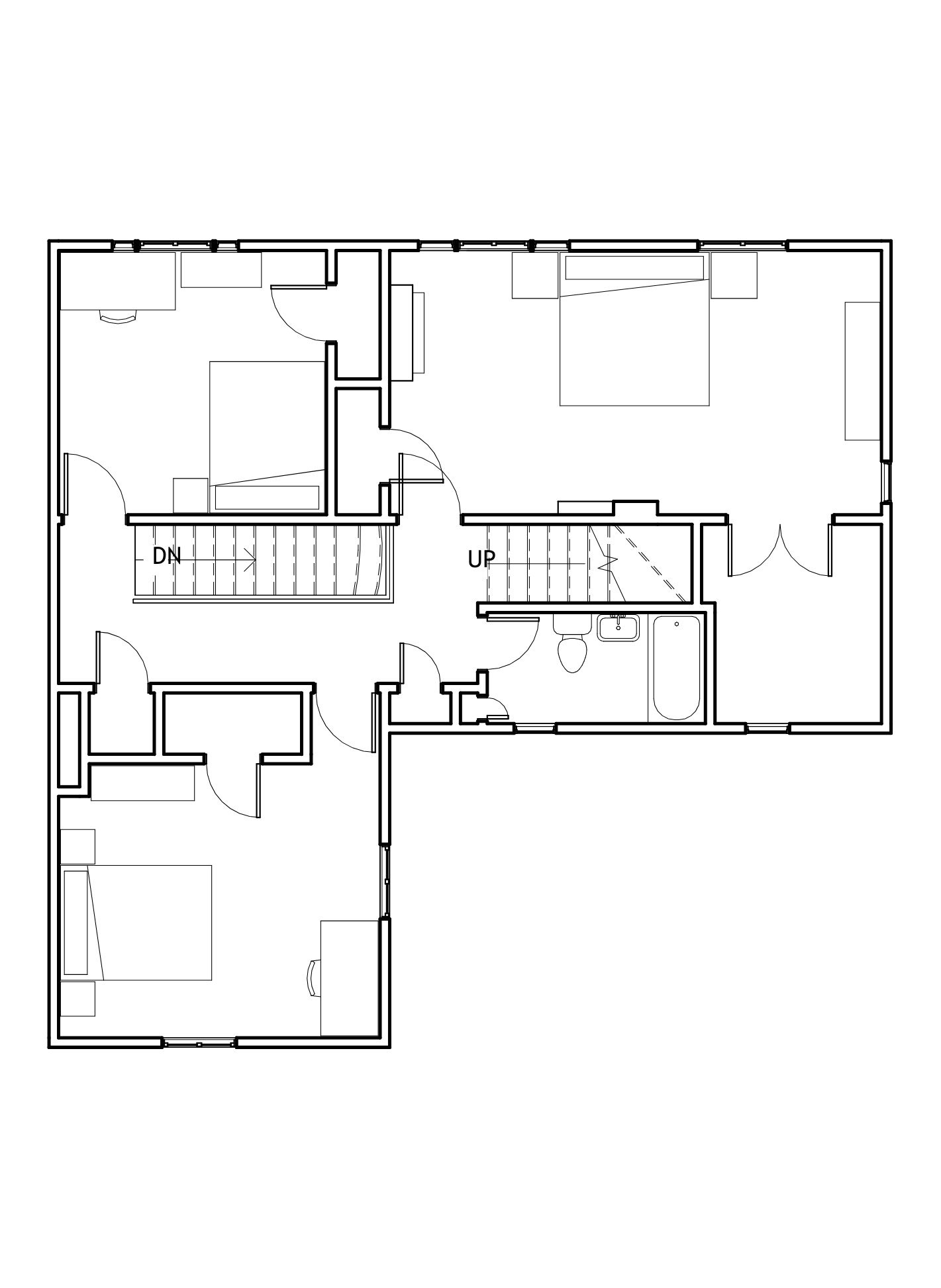
This 3 bedroom, 1.5 bath historic charmer is located on the ever-popular Elmwood Place. The house was built for Thomas N. Hoover, an Ohio University professor of history.
“Hoover was a well-known historian, authoring the book, “The History of Ohio University”. A native of Jackson, Ohio, Hoover was educated at Ohio University and Harvard University. He was a contributor to the American Yearbook and Cyclopedia of American Government.”
–Ohio University
An absolutely unique and historically significant showstopper of a property! These two elegant full brick townhouses at 72 and 74 Elmwood have a rich history that is woven into the historic fabric of Elmwood Place, Ohio University and the City of Athens itself. Hoover hired architect William Jay Davis to design. The home is of the French Eclectic tradition with striking exterior features as well as it’s interior moldings and symmetrical, light-filled design.
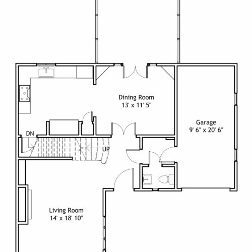
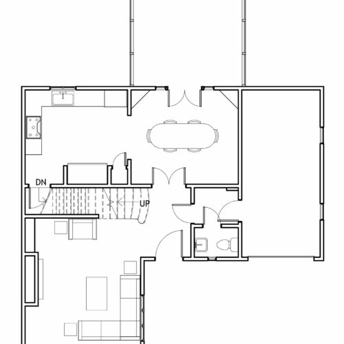
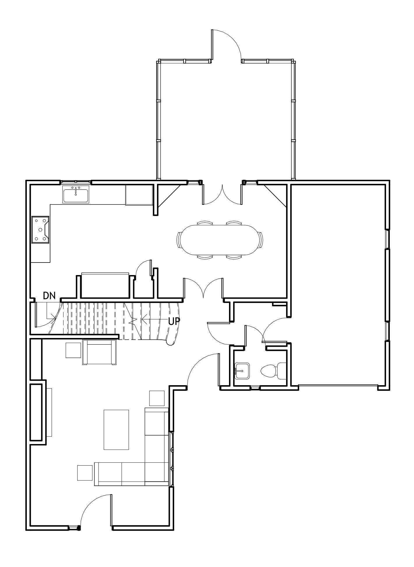
As you walk up to this majestic home, you immediately notice the architectural details, the brickwork, the roof line, the rounded doors and windows, etc. Once you step into this townhouse, you are greeted by gleaming hardwood floors, and light filled spaces. The Living and Dining room have custom, built-in cabinetry. Check out this kitchen…the refrigerator and freezer combo, the double wall oven, and gas countertop range all combine to make a true gourmet’s kitchen. From top to bottom, this townhouse exceeds expectations inside and out.
If that wasn’t enough, there is just the coolest swan fountain prominently featured at the front of the property!
Ideal for the Ohio University or Athens, Ohio Community professional that demands a rental that stands above all other Athens Ohio rentals. One that provides the comfortable walking distance to Uptown Athens and East State St business corridor while also providing comfortable and stylish accommodations. All without the hassles of home ownership!






















