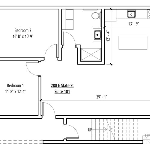
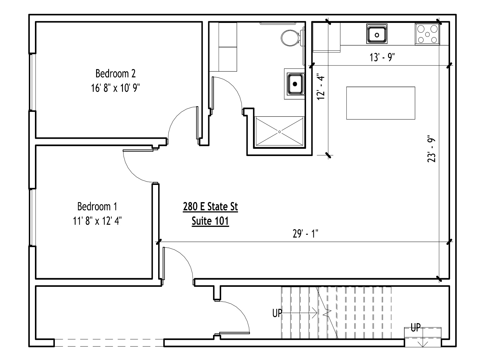
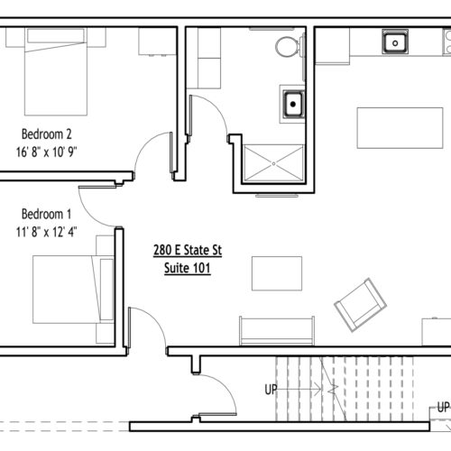
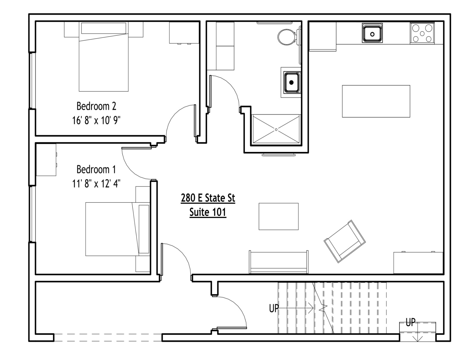
Universally designed floor plan new construction with industrial design aesthetic. Polished concrete floors, butcher block countertops w/ open shelving and stainless steel appliances. Newly constructed property with open concept and seriously high ceilings with exposed duct work and plumbing lines. This two bedroom and one bathroom unit is very livable for residents of all abilities.
Located next to the Athens Bread Company, Village Bakery and Kindred Market and not too far from campus/uptown area.
Parking is onsite and included in the rent.











