Spacious, clean, excellent natural light, fresh modern facade + balcony AND only one block to Court Street!
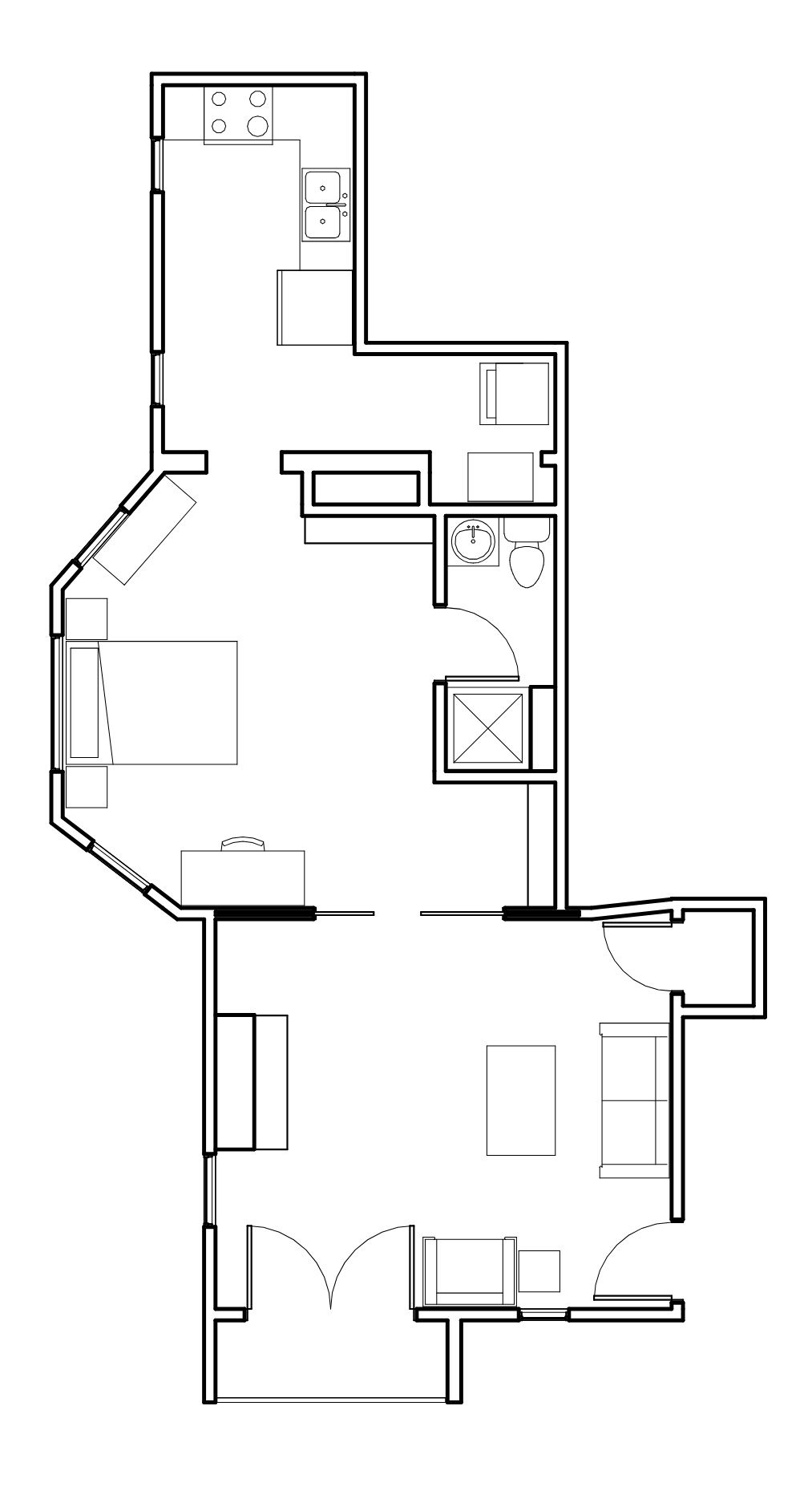
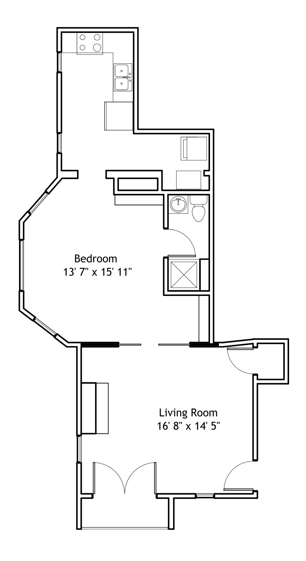
This first floor one bedroom one bath unit has a historic warmth and charm combined with a modern aesthetic. Hardwood floors, tall ceilings, light filled interior and french doors leading to a modest balcony. The balcony overlooks South Congress street and is a super sweet spot to enjoy at least 3 Southeastern Ohio seasons…!
Adjacent to the Beta House and steps away from Court Street and the Ohio University College front gate, this Athens, Ohio location cannot be beat.







